
Каменское благоустраивается. Два новеньких общественных туалета на 6 посадочных мест в скором времени должны появиться в скверах города.
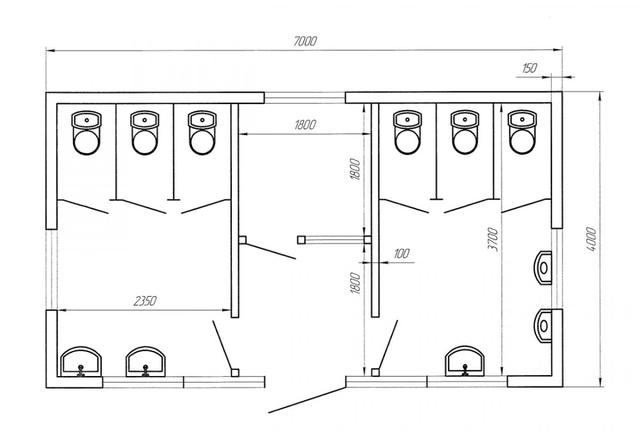
Департаментом ЖКХ и строительства завершена тендерная процедура по закупке двух сборных конструкций общественных туалетов. Согласно техзаданию, внутри каждого модуля будут 6 кабинок с унитазами (три в «М» и три в «Ж»), два писсуара в мужском отделении, два умывальника в женском и один в мужском.
Туалеты обойдутся городу в 1 341 653 гривен. Тендер выиграл предприниматель Вадим Леонтьев.
Как рассказал директор Департамента ЖКХ и строительства Олег Максименко, один из общественных туалетов будет установлен неподалеку от «Железной леди» в Центральном сквере (в месте, где когда-то работал подземный туалет). Второй – в сквере за кинотеатром «Мир».
Для города это событие – радостное. Ведь по сути, единственный не коммерческий цивилизованный туалет есть только в Центральном парке города.
![]() |
Gorod`ской дозор |
![]() |
Фоторепортажи и галереи |
![]() |
Видео |
![]() |
Интервью |
![]() |
Блоги |
| Новости компаний | |
| Сообщить новость! | |
![]() |
Погода |
| Архив новостей | |